Casa bifamiliare, trifamiliare in Vendita in Via Antonio Meucci a Pietrasanta
Centro
€ 380.000
120 m²
7 locali
2 bagni
2
Rif. P473bis
In una piacevole zona residenziale di Pietrasanta, a breve distanza dal centro ma in posizione riservata e silenziosa, proponiamo in vendita interessante porzione di villa bifamiliare in buone condizioni.
L’immobile, dotato di ingresso indipendente, è circondato da un piccolo giardino privato e dispone di posto auto per almeno due vetture, comodità sempre più rara e preziosa.
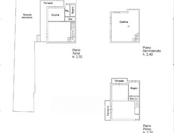
Al piano terra l’ingresso si apre su una luminosa zona living, cucina abitabile, bagno di servizio e pratica lavanderia.
Salendo al primo piano troviamo la zona notte composta da due ampie camere matrimoniali, bagno finestrato dotato di vasca e doccia, due balconi donano luce e sfogo esterno agli ambienti.
Completa la proprietà una spaziosa taverna, ideale come area relax o zona conviviale, già predisposta con attacchi per cucina, oltre a un comodo ripostiglio.
La casa si presenta in ottime condizioni generali, pronta per essere abitata, e rappresenta una soluzione ideale sia come prima casa sia come investimento, grazie alla posizione strategica e alla tranquillità del contesto.
Un’ottima opportunità nel cuore della Versilia.
RIF. P473bis
Vuoi altre informazioni?
Vuoi valutare altre offerte immobiliari?
Devi vendere il tuo immobile?
Contattaci allo /
Oppure vieni a trovarci nella nostra sede di Viareggio in Corso Garibaldi, 170.
L'indirizzo proposto può essere nelle vicinanze per ragioni di privacy.
Caratteristiche
Superficie
120 m²
Locali
7
Bagni
2
Posto auto
2 scoperti
Numero piani edificio
3
Altre caratteristiche
Stato e efficienza energetica
Condizioni immobile
abitabile
Riscaldamento
autonomo
Aria condizionata
assente
Classe energetica
G D.M. 26/06/2015
Costi e disponibilità
Stato al rogito
libero
Prezzo
€ 380.000 posto auto incluso
Calcola mutuo
Posizione e servizi
Via Antonio Meucci, Pietrasanta (LU)
Centro
L’immobile si trova nell’area evidenziata sulla mappa. L’inserzionista ha preferito non indicare la posizione esatta. per sapere l’indirizzo preciso.
Vicino a:
Fermate dei mezzi pubblici
entro 150m da una Fermata autobus/tram
Servizi
entro 400m da una Colonnina ricarica auto
Strumenti aggiuntivi
Cerca altri immobili a Pietrasanta
Case con box posto auto, Case con giardino privato, Case con riscaldamento autonomo, Case con balconeCerca altri immobili in zona Centro
Case in zona con box posto auto, Case in zona con giardino privato, Case in zona con riscaldamento autonomo, Case in zona con balcone, Case in zonaCerca altri immobili a Versilia
Case a Versilia