€ 3.000
2000 m²3 bagniinterratoA+ 6
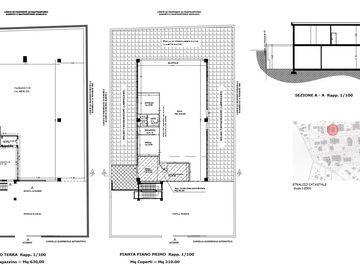
MediazioneCasa propone in affitto, Ampio locale commerciale con destinazione d'uso C/2. Situato nell’area industriale di Cave, con accesso diretto anche dal rettilineo che si collega con Genazzano. La Proprietà ha una superficie complessiva di circa 2000 mq suddivisi in 1.000 mq. esterni, e 1.000 interni divisi in due piani. All'interno del locale, vi sono diverse stanze che offrono molteplici possibilità...
