Villa in Vendita in Via della Cisa 8 a Pietrasanta
Centro
€ 345.000
100 m²
6 locali
2 bagni
3
Italiano
English
Deutsch
Français
Questa villetta bifamiliare si trova a brevissima distanza dal centro storico di Pietrasanta ed è ben collegata alla Marina e a tutti i servizi. L'accesso è ottimo e il giardino consente di parcheggiare una o due auto.
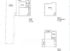
L'abitazione si compone al piano terra di soggiorno di discrete dimensioni, una cucina abitabile e un bagno. La zona notte, al piano superiore è costituita da una bella camera matrimoniale con terrazza di 16 mq, una cameretta (armadi) e un altro bagno.
Al piano terra, con accesso esterno, un comodo locale lavanderia. Il giardino sul fronte ha una superficie di circa 100 mq, mentre sul retro c'è la possibilità di utilizzare un grande giardino a comune con le abitazioni confinanti.
La casa è in condizioni assolutamente abitabili, le camere sono climatizzate.
L'abitazione si compone al piano terra di soggiorno di discrete dimensioni, una cucina abitabile e un bagno. La zona notte, al piano superiore è costituita da una bella camera matrimoniale con terrazza di 16 mq, una cameretta (armadi) e un altro bagno.
Al piano terra, con accesso esterno, un comodo locale lavanderia. Il giardino sul fronte ha una superficie di circa 100 mq, mentre sul retro c'è la possibilità di utilizzare un grande giardino a comune con le abitazioni confinanti.
La casa è in condizioni assolutamente abitabili, le camere sono climatizzate.
Caratteristiche
Superficie
100 m²
Locali
6
Bagni
2
Box
singolo
Posto auto
2 scoperti
Numero piani edificio
2
Altre caratteristiche
Stato e efficienza energetica
Condizioni immobile
abitabile
Riscaldamento
autonomo
Aria condizionata
sì
Classe energetica
G D.M. 26/06/2015
- IPE globale non rinnovabile (EPgl,nren): 272.0 KWh/m2a
Costi e disponibilità
Stato al rogito
libero
Prezzo
€ 345.000 box incluso, posto auto incluso
Calcola mutuo
Posizione e servizi
Via della Cisa 8, Pietrasanta (LU)
Centro
Vicino a:
Scuole
a 450m da una scuola media
a 410m da una scuola superiore
Servizi
a 130m da una Colonnina
Strumenti aggiuntivi
Data ultimo aggiornamento 15 Aprile 2026
Cerca altri immobili a Pietrasanta
Ville con box posto auto, Ville con giardino privato, Ville con riscaldamento autonomo, Ville con terrazzoCerca altri immobili in zona Centro
Ville in zona con box posto auto, Ville in zona con giardino privato, Ville in zona con riscaldamento autonomo, Ville in zona con terrazzo, Case in zonaCerca altri immobili a Versilia
Ville a Versilia



















